Ersatz einer delaminierten Telan-Linse im ZEISS-Tubus 47 30 28

Begonnen von -JS-, Juni 06, 2022, 22:14:30 NACHMITTAGS

Vorheriges Thema - Nächstes Thema

-JS-

Der am Zeiss Standard verwendete Trinokular-Tubus mit der Nr. 47 30 28 bietet die Möglichkeit, neben 100% visueller Beobachtung auch eine Teilung in 20% Beobachtung und 80% für fotografische Zwecke zuzulassen.

Dies wird über ein schlittengeführtes und entsprechend ausgelegtes Teilerprisma ermöglicht.
Neben diesem Prisma sind noch insgesamt drei sog. Telanlinsen in dem Tubus verbaut, welche für die notwendige Einhaltung der Brennweitenveränderungen verantwortlich sind.

Mittels einer am senkrecht montierten Foto-Tubus befindlichen Einstellschnecke kann zusätzlich am Tubus 47 30 28 noch die genaue Parfokalität zwischen visuell beobachtetem Bild und dem eingesetzten Foto-Okular sicher gestellt werden. Dies ist zweifellos eine sehr zweckmäßige Einrichtung für die afokal betriebene Fotografie an Mikroskopen mit 'endlicher' optischer Bestückung.

Die im sekrechten und damit für die Fotos verantwortlichen Tubusteil vorhandene obere Telan-Linse war nun leider dermaßen delaminiert, daß damit hergestellte Bilder in die Kategorie "nicht mehr vorzeigbar" einzureihen waren.

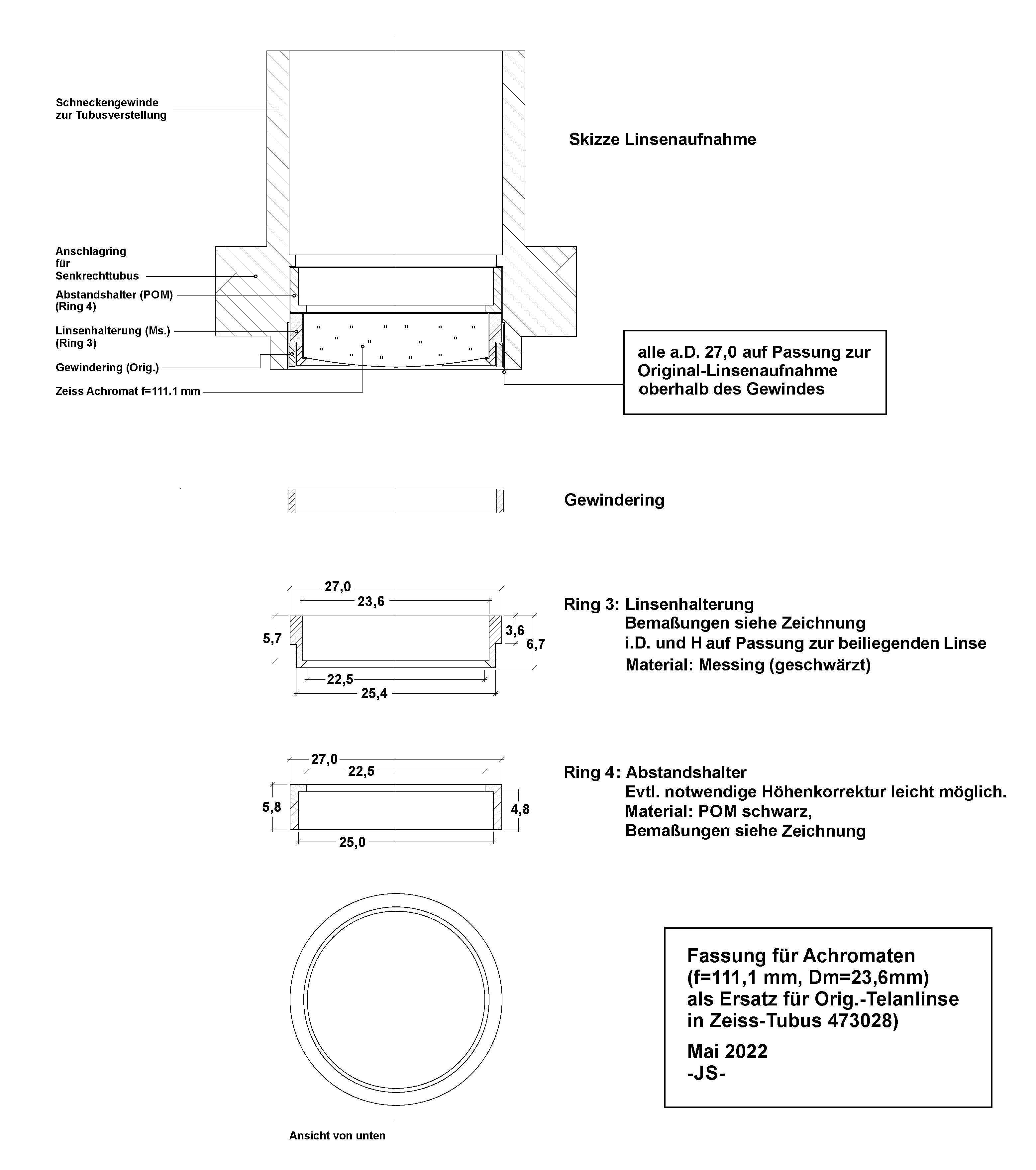
Eine mit überaus einfachen Mitteln (Laborstativ, Balgengerät, Pergamentpapier, Lupe, Zwischenringsatz, Klebeband, sehr weit entfernter Sendemast) vorgenommene Brennweitenermittlung am zweilinsig aufgebauten delaminierten Original-Achromaten ergab einen Wert von (ca.) f = 110 mm. Der Durchmesser des unbrauchbar gewordenen Delinquenten beträgt 27,0 mm, seine Randdicke 8,2 mm.

Mit diesen Eckdaten konnte nun das WWW durchforstet werden, leider mit nur äußerst spärlichen Ergebnissen.
Mit Blick auf die Brennweite kam ein zweilinsig verkitteter Achromat von Zeiss (Lieferant: praezisionsoptiken.eu) den oben genannten Daten am nächsten (f = 111,1 mm), aber weder der eventuell hinsichtlich möglicher Vignettierung wichtige Durchmesser (neu nur 23,6 mm) noch die Randdicke (neu 5,7 mm) der neuen Linse waren zunächst einmal nicht so recht mit dem Original in Einklang zu bringen.

Fazit Nr. 1: Man kann nicht alles haben ...

Mit den genannten Ist-Maßen der neuen Linse wurde als Vorlage für die notwendigen Arbeiten an der Drehbank eine Zeichnung angefertigt:

Zeichnung als Vorlage für die anfallenden Arbeiten an der Drehbank:


Vorstellung der für den Einbau im Zeiss Trinokular-Tubus 47 30 28 benötigten Teile:
Vordere Reihe, von links: Neue Linse f =  111,1 mm, Durchmesser 23,6 mm, Rand 5,7 mm; gestufter Messingring (neu, geschwärzt); Abstandsring aus POM (neu)
Hintere Reihe, von links, Original-Teile: Gewindering, Linsenaufnahme mit Einstellschnecke, Befestigungsschrauben M3



Einfügen der Linse mit ihrer Planseite nach oben in den Messingring, Einbau des POM-Ringes in die Original-Linsenaufnahme (kleinerer Durchmesser des POM-Ringes zum Gewinde weisend)


Zustand nach Einsetzen der Linse in die Linsenaufnahme
Konvexer Linsenbereich weist in Richtung Gewinde, der plane in Richtung Tubusschnecke. (Der mit abgebildete Messing-Vierkantstab dient hier nur als Hilfsmittel)


Gewindering montiert


Montage der Verbindungsschrauben


Montage des senkrechten Tubusrohres vor der Endjustage


Als nächstes wurde ein Vergleich mit dem Trinokular-Tubus "mit Schiebeprisma" (Zeiss Nr. 47 30 26) zum renovierten Tubus Nr. 47 30 28 vorgenommen, um eventuell vorhandene, durch den kleineren Linsendurchmesser bedingte Vignettierungen erkennen zu können:

Zum Vergleich: Aufnahme mit dem älteren Zeiss-Tubus mit Schiebeprisma Nr. 47 30 26
(Plan 16, S-KPL 10/20, Canon EOS M 6 Mk II; Cannabis sativa, Spross quer)


Zeiss-Trinokular-Tubus 47 30 28 mit neu eingebauter Telanlinse f = 111,1 mm und D = 23,6 mm  (übrige Daten wie oben angegeben)


Fazit Nr. 2: Es scheint zu fuktionieren, es sind keine erkennbaren Vignettierungen sichtbar ...

Die nachfolgenden Beispiel-Aufnahmen sind allesamt mit dem reparierten Tubus erstellt:

Plan 10, S-KPL 10/20 Br, Canon EOS M6 Mk.II; Strichplatte


Plan 40, S-KPL 10/20 Br, Canon EOS M6 Mk.II; Strichplatte


Plan Neofluar 25 Oel, S-KPL 10/20 Br, Canon EOS M6 Mk.II; Haustorium von Nesselseide auf Urtica spec.


PlanApo 63 Oel, DIC, S-KPL 10/20 Br, Canon EOS M6 Mk.II; Cymbella lanceolata (Ehr.) Van Heurck


PlanApo 63 Oel Phasenkontrast, S-KPL 10/20 Br, Canon EOS M6 Mk.II; Pleurosigma angulatum (Queckett) W.Smith


Fazit Nr. 3: Der Austausch der delaminierten Original-Linsengruppe durch einen neuen Achromaten mit annähernd ähnlicher Brennweite ist relativ einfach duchführbar.
Die Qualität der erhaltenen Bilder unterscheidet sich meiner Meinung nach allenfalls im Nuancenbereich.


Mit der hier vorgestellten Aktion wird eine Möglichkeit aufgezeigt, eine delaminierte und damit für die fotografische Zwecke unbrauchbare Telan-Linse durch den Austausch mit einer neuen Linse vergleichbarer Bauart zu ersetzen, um auf diese Weise einen Zeiss Foto-Trinokular-Tubus Nr. 47 30 28 noch viele Jahre weiter nutzen zu können.

Ich möchte es an dieser Stelle nicht versäumen, meinen herzlichen Dank an Olaf für das "Gefummel an der Drehbank" sowie an Michael für seine auf langjähriger Erfahrung beruhenden Tipps und die Korrekturen an meinem Erstentwurf auszusprechen.

Hamburg, im Juni 2022

Joachim

... bevorzugt es, ge_Du_zt zu werden ...

Rawfoto

Guten Morgen Joachim

Gratulation, beeindruckend :)

Liebe Grüße

Gerhard
Gerhard
http://www.naturfoto-zimmert.at

Rückmeldung sind willkommen, ich bin jederzeit an Weiterentwicklung interessiert, Vorschläge zur Verbesserungen und Varianten meiner eingestellten Bilder sind daher keinerlei Problem für mich ...

ManK

Hallo Joachim,
gut gemacht.

Hast du nicht mal versucht die Original-Linsengruppe zu "relaminieren" ?
Was für Okulare funktioniert könnte doch auch hier funktionieren..

Grüße
Manfred